Architeriors
Home
Our Services
Our Projects
COMMERCIAL PROJECTS
327 ARGLE STREET WAGGON & HORSES HOTEL
760 ANGLESEA ROAD, FRESHWATER CREEK
1-5 Reeves Street, Burnie Wine & Spirits Pty Ltd
50 FORMBY ROAD RESPECT
70 SHEAHAN ROAD, TRUGANINA
Custom Built Homes
LOT 88, 12 BINDARA ROAD, TRANMERE
LOT 90, 12 BINDARA ROAD, TRANMERE
10 GLENRIDGE COURT, GLENOCRCHY
194 TOLLARD DRIVE, ROKEBY
6 BRENT STREET, GLENORCHY
18 ASCOT AVENUE, SANDY BAY 1
35 KENMORE WAY, CLYDE NORTH
61 CANDY ROAD, GREENVALE
417 PETHERICKS ROAD, GOORNONG
Kitchen & Bathroom Remodel
3 SMETHWICK COURT, TRUGANINA
18 ASCOT AVENUE, SANDY BAY
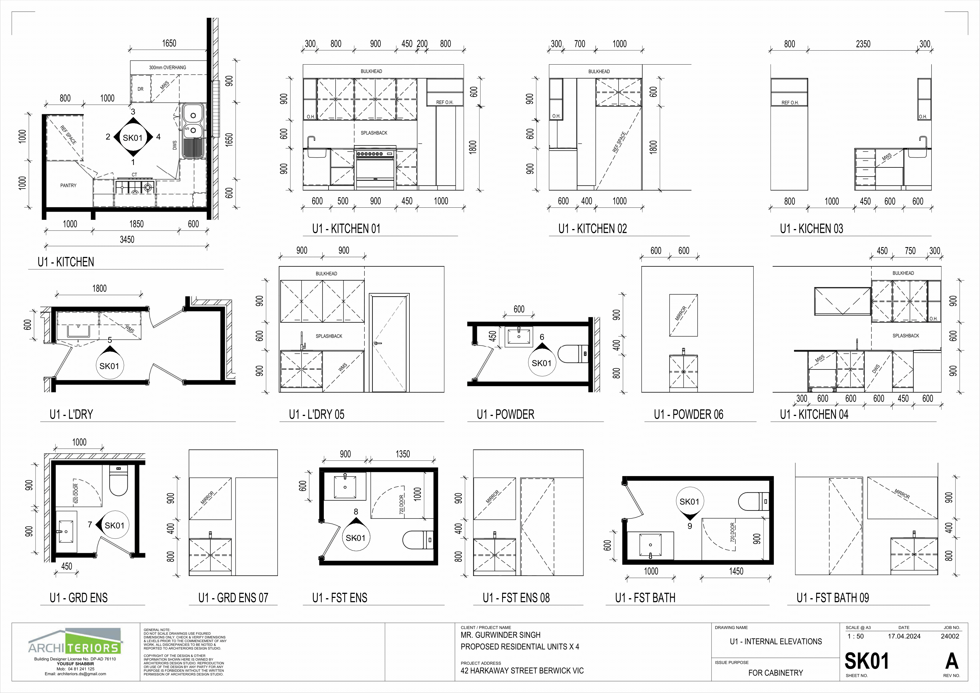
42 HARKAWAY STREET, BERWICK
MASTER PLANS
1 HAYFEILD, BRIDGEWATER
STAGE 6C, THE MILLS, NEW NORFOLK
Renovations & Extensions
7 NELSON AVENUE, KINGSTON
85 BARTER CRESCENT, FOREST HILL
114 LEAMINGTON STREET, RESERVOIR
NDIS-SDA PROJECTS
Improved Liveability
Robust
High Physical Support
Fully Accessible
SECONDARY DWELLINGS (GRANNY FLATS)
12 MARINER CIR, HUNTINGFIELD
5 ELF AV, GLENORCHY
14 PARK CITY DRIVE, LYNBROOK
18 ATHERTON AV, WEST MOONAH
UNIT DEVELOPMENTS
LOT 571 & 572, SEVENTH AVENUE
174 STONY POINT DRIVE
14 NIELSEN ESPLANADE
Lot 29 Howrah Gardens
About Us
Contact Us
KITCHEN & BATHROOM REMODEL
3 SMETHWICK COURT,
TRUGANINA
18 ASCOT AVENUE,
SANDY BAY
42 HARKAWAY STREET,
BERWICK