Architeriors

9 FRONSAC AVENUE CORIO

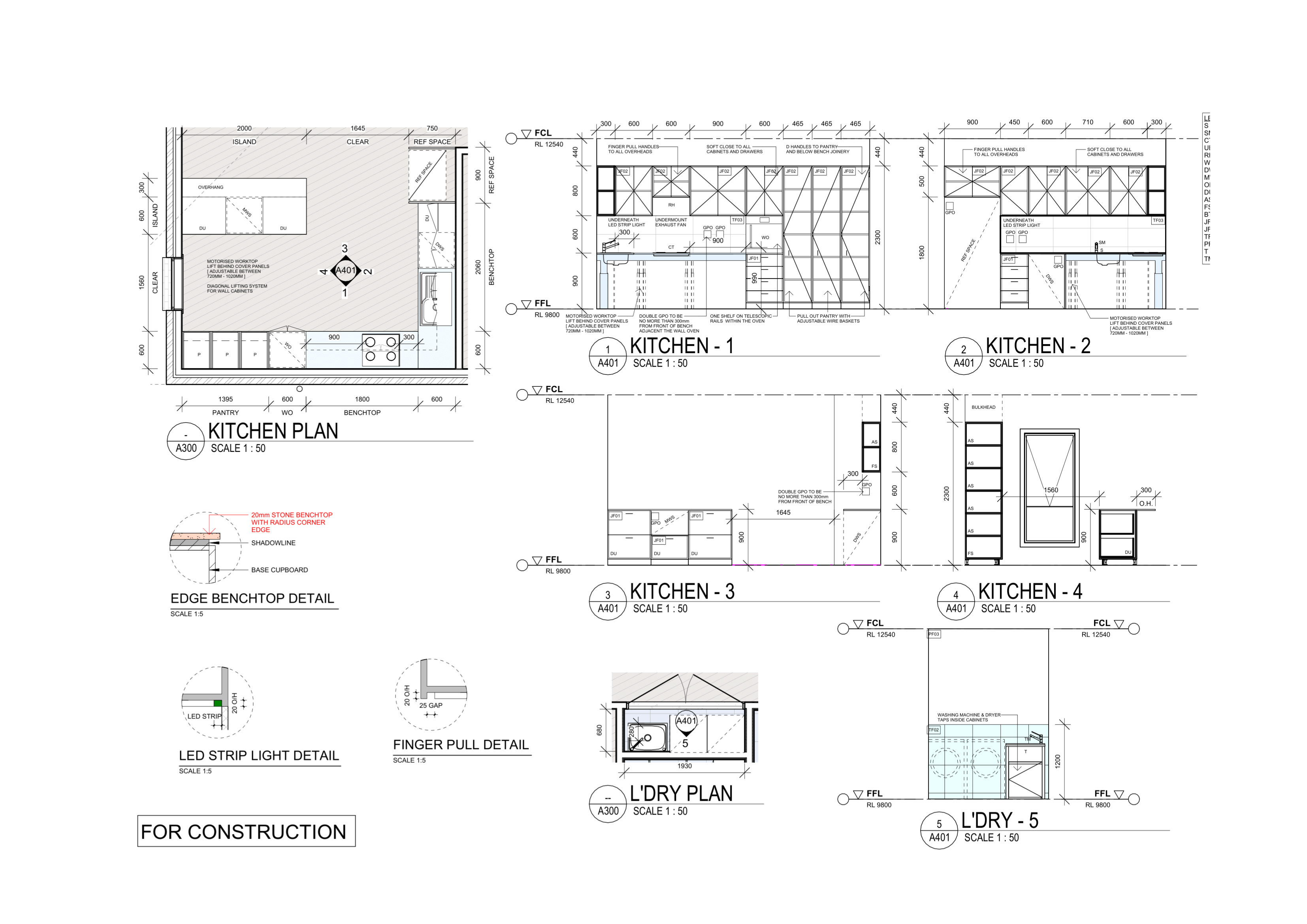
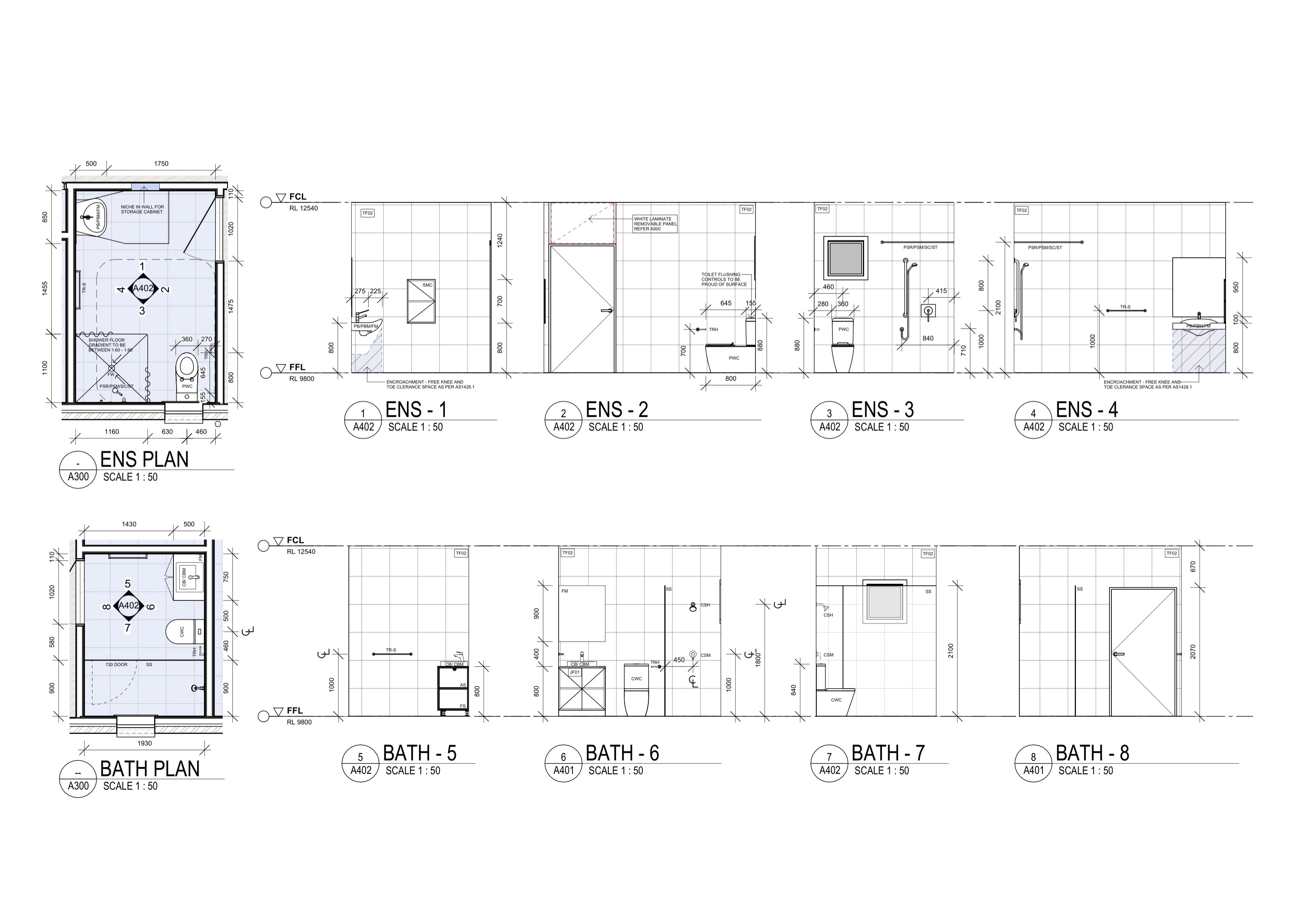
9 Fronsac Avenue, Corio, is a modern residential project featuring contemporary architecture, open-plan living, quality finishes, and a functional, family-friendly design.

PROJECT HIGHLIGHTS

Looking for something similar?

Reach out to us today!