Architeriors

3B HPS

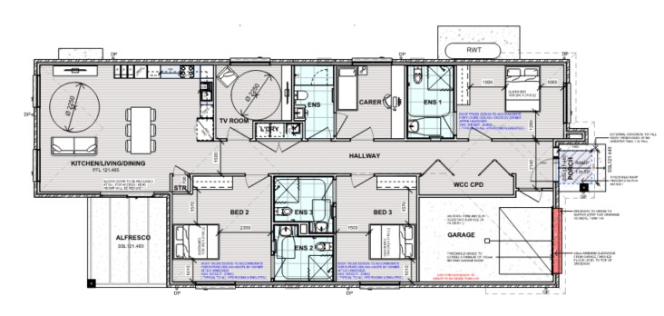
A 3B HPS design is a modern home featuring three spacious bedrooms, open-plan living, high-quality finishes, and energy-efficient architectural elements for comfortable living.

PROJECT HIGHLIGHTS

Looking for something similar?

Reach out to us today!