Architeriors
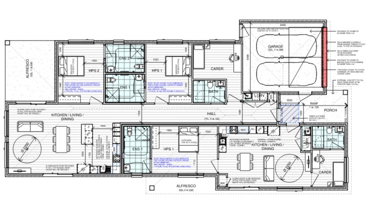
A 2+1 HPS layout is a smart, space-efficient duplex design featuring two main bedrooms, a flexible additional room, modern finishes, and open-plan living.